
向自然探寻,生活之韵
向艺术求索,空间之灵
每一次归家,即是一场栖心旅程

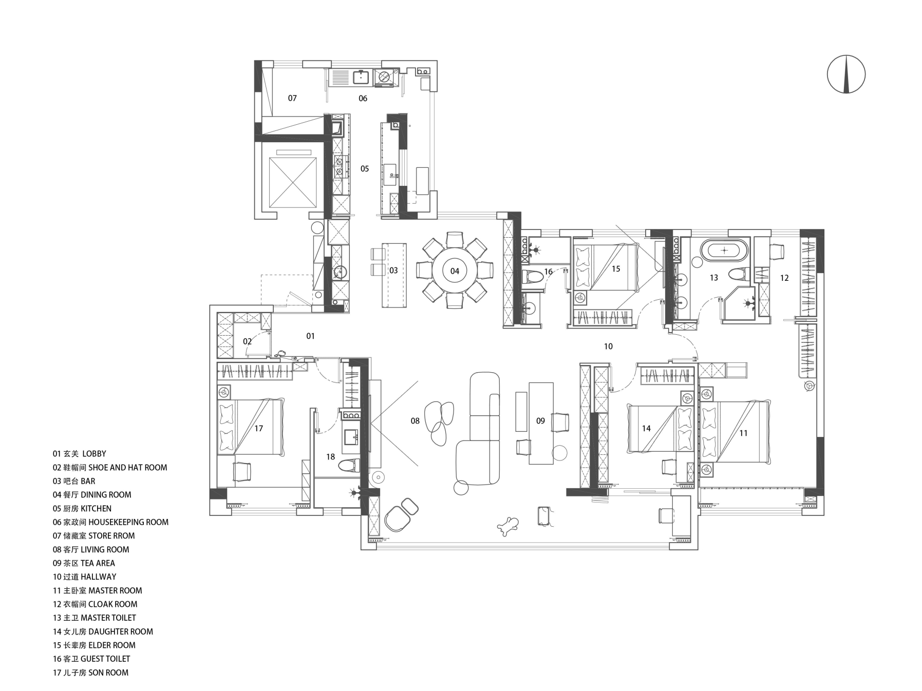
设计不仅仅是对空间的塑造,更是在设计一种生活。设计师不断地挖掘空间优势与客户的真实需求,将家人亲密的情感、尺寸与温度融入其中,给予居者一个对的空间,深切感受家的幸福。

自然的延续
让艺术成为生活的载体,融合大落地窗与窗外美景,实现空间之美与功能需求的无缝融合。既强化了无敌窗景,又模糊了室内外关系,让空间得以极大的舒展、延伸……

10米长廊的设计,将阳台空间纳入客厅,光与气在此得到更好的流转,与自然的触碰如一首颂歌,礼赞生命中的美妙时光。
同时增加了亲子活动区,小朋友拥有足够的空间休息玩耍看书。长者沐浴在阳光下,或闲聊或逗趣,促进不同代际之间的互动,感受家的温暖。



多重角度思考并塑造动态表现形式,实现空间的一致性魅力,满足不同功能和情感需求。

茶区不仅是品茗的场所,更是家的温暖延伸。质感温润的实木茶桌与各个形制的典雅茶椅组合搭配,闲适的午后,茶香氤氲,时光仿佛也慢了下来,体验一段宁静而美好的时光。


流动的时光
-
百叶窗光影婆娑,暖黄的灯光映照下的餐区传递出温暖而醇厚的就餐氛围,大理石材的桌面与现代皮质餐椅章法有致的搭配让餐厅别有韵味。

主卧以暖色调沉淀了家居的考究气质,温润的原木铺叙,浅色的地毯,稳重的装饰品,其独特的组合方式体现空灵的流动意象,润物无声,让每一次呼吸都充满自然的气息。


次卧空间以灰色调为主基调,整个空间安静又有质感,简单的装饰画点缀丰富了整个空间的层次感。



所有的合理都来自于不断地对空间布局的整理优化,对细部进行调整,功能融汇贯通,追求形式美,更追求功能与多重体验品质的卓越。
在这里,你可以放下所有的防备与束缚,让自己的心灵得到彻底的释放与净化。拥抱自然、趣味生活,让我们在这份宁静与美好中,重新找回内心的平静与力量,成长前行,在人生的旅途中绽放属于自己的光彩。